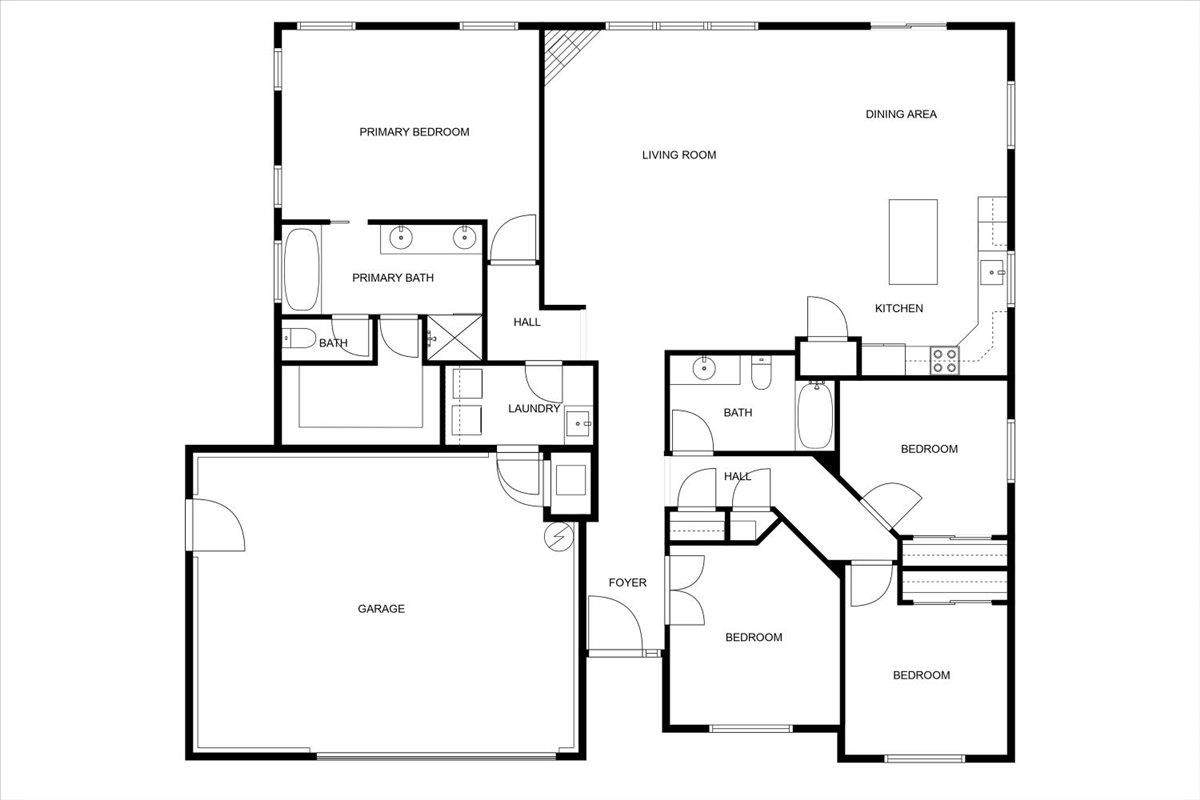
Description
Single level living in this turnkey zero-step entry 2015 Rancher. Open concept living/dining room and kitchen have beautiful hickory engineered hardwood floors. Kitchen features granite countertops, stainless appliances, island bar and large pantry. The master suite includes double vanity, shower with seat and grab bars, separate soaking tub and spacious walk-in closet. Two more bedrooms and a full bathroom just down the hall. The office enjoys great natural light looking south out the front of the house and could be converted to fourth bedroom if desired. Laundry room with entrance from oversized garage doubles as a perfect mud room when you're carrying in the groceries. Out back there's a large covered patio with BBQ grill hooked up to house natural gas. The fenced back yard features well manicured lawn and landscaping as well as a paved path all the way around to garage man door. Conveniently located in the desirable Maple Leaf neighborhood, just minutes from Airport, Fairchild AFB and downtown Spokane!
-
3BEDS
-
0.18ACRES
-
2BATHS
-
01/2 BATHS
-
2,021SQFT
-
$0$/SQFT
School Information
Description
Single level living in this turnkey zero-step entry 2015 Rancher. Open concept living/dining room and kitchen have beautiful hickory engineered hardwood floors. Kitchen features granite countertops, stainless appliances, island bar and large pantry. The master suite includes double vanity, shower with seat and grab bars, separate soaking tub and spacious walk-in closet. Two more bedrooms and a full bathroom just down the hall. The office enjoys great natural light looking south out the front of the house and could be converted to fourth bedroom if desired. Laundry room with entrance from oversized garage doubles as a perfect mud room when you're carrying in the groceries. Out back there's a large covered patio with BBQ grill hooked up to house natural gas. The fenced back yard features well manicured lawn and landscaping as well as a paved path all the way around to garage man door. Conveniently located in the desirable Maple Leaf neighborhood, just minutes from Airport, Fairchild AFB and downtown Spokane!
© 2026 of Spokane Association of REALTORS® MLS. All rights reserved. Listing information courtesy of Spokane Association of REALTORS® MLS. IDX data is provided exclusively for consumers' personal, non-commercial use, and may not be used for any purpose other than to identify prospective properties consumers may be interested in purchasing. Data is deemed reliable but is not guaranteed accurate by the SARMLS. Data last updated 2026-03-11T12:20:40.087.
